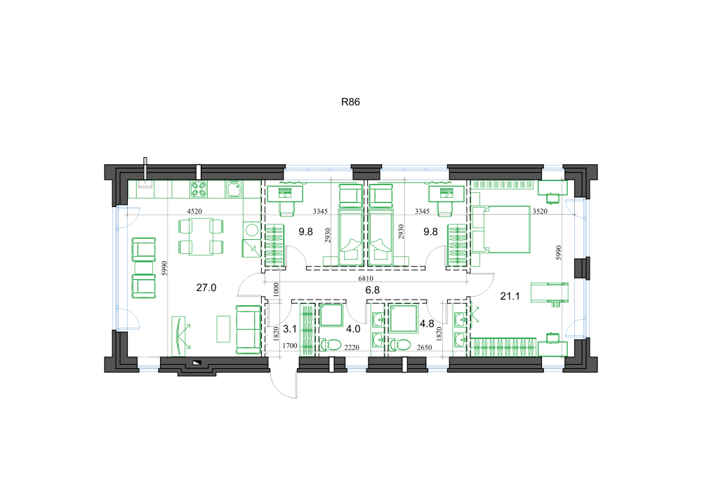
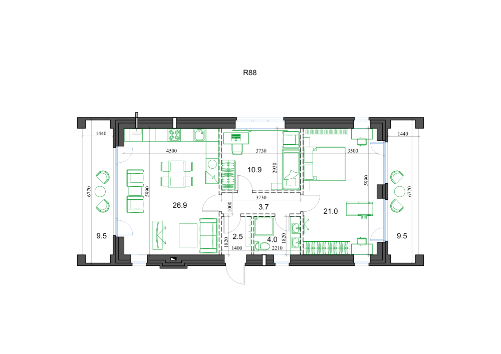
Проект С1-Т84

Посёлок
Садовый
86.5 - 86.7 м2
1.3 сот.
Тип: Таунхаус
Этажность: 2
Спальни: 3
Свободная планировка
Стоимость: от 8 484 000 руб.
Комплектация G1_84

Перегородки:простенок на 1-м этаже для инженерного оборудования

Электричество:Разводка электрики есть при входе (питание газового котла освещение тамбура и крыльца)

Отопление:теплые полы по первому этажу, радиаторы на верхних этажах

Высота подоконника окна: 60 см

Ширина лестничного проема: 104 см

Толщина стены: 51 см

Высота потолка: 286 см

Цвет облицовочного кирпича:темный

Штукатурка
Стяжка на всех этажах
Возможность подключения камина