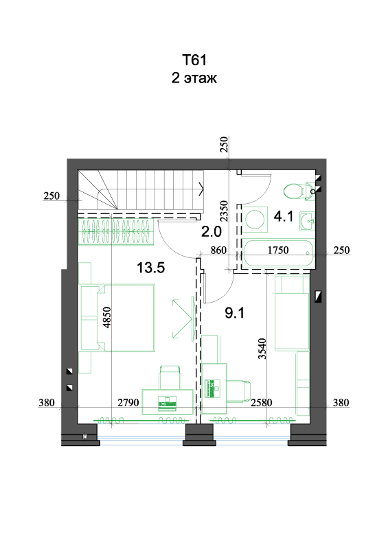
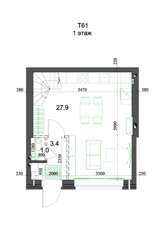
Проект Э6-Т61

Посёлок
Элитный
61.8 м2
0.76 сот.
Тип: Таунхаус
Этажность: 2
Спальни: 2
Свободная планировка
Стоимость: от 7 310 000 руб.
Комплектация L6_56

Перегородки:простенок на 1-м этаже для инженерного оборудования

Электричество:Разводка электрики есть при входе (питание газового котла освещение тамбура и крыльца)

Отопление:теплые полы по первому этажу, радиаторы на верхних этажах

Высота подоконника окна: 45 см

Ширина лестничного проема:92/102 см

Толщина стены: 51 см

Высота потолка: 286 см

Цвет облицовочного кирпича:темный

Штукатурка
Стяжка на всех этажах
Возможность подключения камина